Moderne Praxis-/Klinikfläche mit OP-Saal und Patientenzimmern – ca. 333 m² in Abstatt
Seestraße 5, 74232, Abstatt, Deutschland- 333 m²
Grundlagen
- Kaltmiete / Monat: €4.850
- Provision: 2 MM inkl. MWST
- Fläche, m²: 333 m²
- Zimmer insgesamt: 13
- Stockwerk: 0
- Verfügbar ab: 01.12.26
- Mieten / Kaufen: Mieten
- Energieausweis: liegt zur Besichtigung vor
Beschreibung
-
Beschreibung:
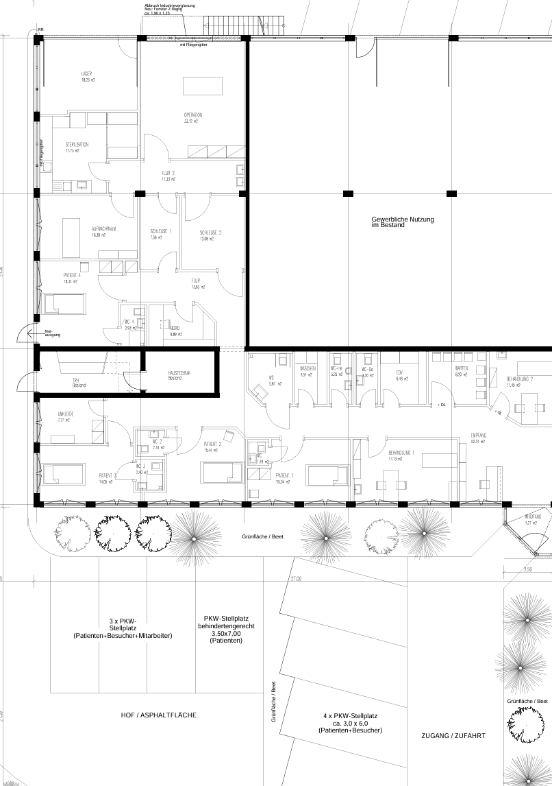
Zur Vermietung steht eine großzügige und hochwertig ausgebaute Gewerbefläche im Erdgeschoss mit einer Gesamtfläche von ca. 333 m². Die Einheit wurde vor rund 10 Jahren umfassend renoviert und speziell für eine Praxis für plastische Chirurgie ausgebaut.
Die durchdachte Raumaufteilung ermöglicht eine vielseitige Nutzung im medizinischen oder therapeutischen Bereich. Der Grundriss umfasst derzeit vier Patientenzimmer mit jeweils eigenem Bad (Dusche und WC), zwei Behandlungszimmer, einen vollwertigen Operationssaal, einen Aufwachraum, einen Sterilisationsraum, einen Lagerraum, einen Empfangsbereich, einen Warteraum sowie separate WC-Anlagen.
Dank der funktionalen Struktur eignet sich die Fläche insbesondere für medizinische Praxen, Privatkliniken, ambulante Operationszentren oder andere gesundheitsnahe Dienstleistungen.
Zur Einheit gehören zudem 6 Außenstellplätze, die sowohl für Patienten als auch für Mitarbeiter komfortable Parkmöglichkeiten bieten.
Ausstattung:
Die Gewerbefläche wurde im Zuge der Praxisnutzung hochwertig ausgebaut und befindet sich in einem gepflegten und modernen Zustand.
Die Räumlichkeiten präsentieren sich hell, freundlich und funktional gestaltet. Die vorhandene Raumstruktur ist optimal auf medizinische Abläufe abgestimmt und bietet eine effiziente Kombination aus Behandlungs-, Aufenthalts- und Funktionsräumen.
Besonders hervorzuheben sind:
- vier Patientenzimmer mit eigenem Badezimmer (Dusche und WC)
- Operationssaal mit zugehörigem Funktionsbereich
- Aufwachraum
- Sterilisationsraum
- zwei Behandlungszimmer
- Empfangsbereich mit Warteraum
- separate WC-Anlagen
- Lagerraum
- Küche
- 6 Außenstellplätze
Die vorhandene Ausstattung ermöglicht grundsätzlich eine sofortige Nutzung im medizinischen Bereich, kann jedoch auch für andere gewerbliche Konzepte angepasst werden.
Lage:
Die Gewerbefläche befindet sich in 74232 Abstatt, einer wirtschaftlich attraktiven Gemeinde im Landkreis Heilbronn. Die Lage zeichnet sich insbesondere durch ihre sehr gute Erreichbarkeit aus dem Großraum Heilbronn sowie aus der Metropolregion Stuttgart aus.
Über die nahegelegenen Autobahnen und Bundesstraßen sind sowohl Heilbronn als auch Stuttgart in kurzer Fahrzeit erreichbar, was den Standort für Mitarbeiter, Patienten und Kunden gleichermaßen attraktiv macht.
Die Gemeinde Abstatt ist Teil einer wirtschaftsstarken Region mit zahlreichen mittelständischen Unternehmen und einer guten Infrastruktur. Durch die verkehrsgünstige Anbindung sowie die vorhandenen Außenstellplätze direkt am Objekt ist eine komfortable Anreise und Parksituation gewährleistet.
Sonstiges:
Diese vielseitige Gewerbefläche bietet ideale Voraussetzungen für medizinische oder gesundheitsnahe Nutzungen. Durch den ehemaligen Betrieb einer Praxis für plastische Chirurgie ist bereits eine funktionale Infrastruktur vorhanden, die insbesondere für Arztpraxen, Privatkliniken, Therapiezentren oder ambulante Operationszentren interessant sein kann.
Die großzügige Fläche, die helle Gestaltung der Räume sowie die vorhandenen Funktionsbereiche ermöglichen einen effizienten Praxisbetrieb und bieten gleichzeitig ausreichend Gestaltungsspielraum für individuelle Nutzungskonzepte.
Dank der sechst Außenstellplätze sowie der praktischen Erdgeschosslage ist eine komfortable Erreichbarkeit für Patienten, Kunden und Mitarbeiter gewährleistet.
Bei Interesse stellen wir Ihnen die Räumlichkeiten gerne im Rahmen einer persönlichen Besichtigung vor.
Hinweis: Alle Angaben in diesem Exposé wurden sorgfältig und nach bestem Wissen erstellt. Für die Richtigkeit und Vollständigkeit der Informationen wird jedoch keine Haftung übernommen. Die Angaben dienen lediglich zur Vorabinformation und stellen kein vertragliches Angebot dar.
